basement floor – 1535 sq ft
main floor – 1535 sq ft
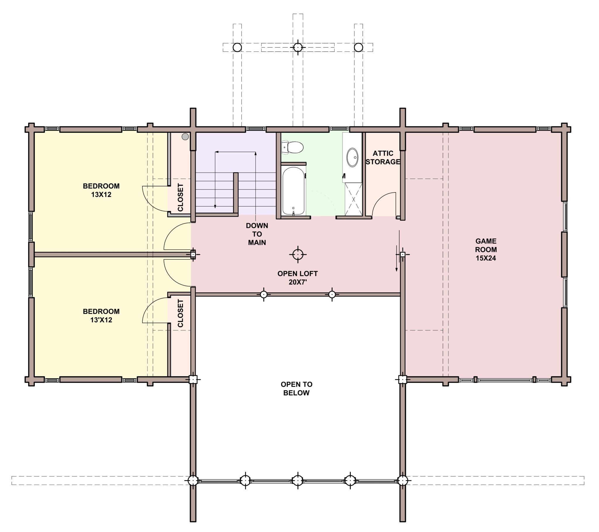
loft floor – 1155 sq ft
bedrooms – 4
baths – 3.5
garage – yes



The SPARKY is the classic log home, embodying warmth and comfort that invites you to unwind and connect with nature. With its big windows, you can bask in the beauty of the surrounding landscape, allowing natural light to flood the interior and create a serene atmosphere. The huge look and feel of the SPARKY, combined with its monster vaulted ceilings, gives you a sense of freedom and space that is hard to find in traditional homes.
Imagine stepping inside this stunning log home, where the rich aroma of natural wood envelops you, instantly making you feel at home. The SPARKY is not just a house; it’s a sanctuary where memories are made. Whether you’re hosting family gatherings or enjoying quiet evenings by the fire, this log home provides the perfect backdrop for life’s most cherished moments.
Crafted with care, the SPARKY showcases the beauty of log construction, blending rustic charm with modern amenities. Each log tells a story, adding character and warmth to your living space. The open floor plan allows for seamless transitions between the kitchen, dining, and living areas, making it ideal for entertaining guests or simply enjoying family time.
As you explore the SPARKY, you’ll discover thoughtful details that enhance your living experience. From the handcrafted cabinetry to the energy-efficient features, every aspect is designed with your comfort in mind. The spacious bedrooms offer a peaceful retreat, while the luxurious bathrooms provide a spa-like experience, allowing you to relax and rejuvenate after a long day.
Living in a log home like the SPARKY means embracing a lifestyle that values sustainability and connection to the environment. The natural materials used in its construction not only reduce your carbon footprint but also create a harmonious living space that promotes well-being. Imagine waking up to the sound of birds chirping and the gentle rustle of leaves, a daily reminder of the beauty that surrounds you.
In addition to its aesthetic appeal, the SPARKY is designed for durability and longevity. Log homes are known for their strength and resilience, standing the test of time while maintaining their charm. With proper care, your SPARKY will be a cherished family home for generations to come.
Whether you’re seeking a weekend getaway or a permanent residence, the SPARKY log home offers the perfect blend of comfort, style, and functionality. It’s more than just a place to live; it’s a lifestyle choice that reflects your values and aspirations. Embrace the log home experience and let the SPARKY be the canvas for your life’s adventures.
For more information call Sierra Log and Timber – 530-899-0680
email – info@sierralogandtimber.com








