Skip to content
Call 530-899-0680
Our Story
Free Resources
FLOORPLANS
GALLERY
How We Work
THE PROCESS
Parts
Online Store
Barns
Shade Structures
FLOORPLANS
GALLERY
How We Work
THE PROCESS
Parts
Online Store
Barns
Shade Structures
REQUEST
INFORMATION
FLOORPLANS
GALLERY
How We Work
THE PROCESS
Parts
Online Store
Barns
Shade Structures
FLOORPLANS
GALLERY
How We Work
THE PROCESS
Parts
Online Store
Barns
Shade Structures
REQUEST
INFORMATION
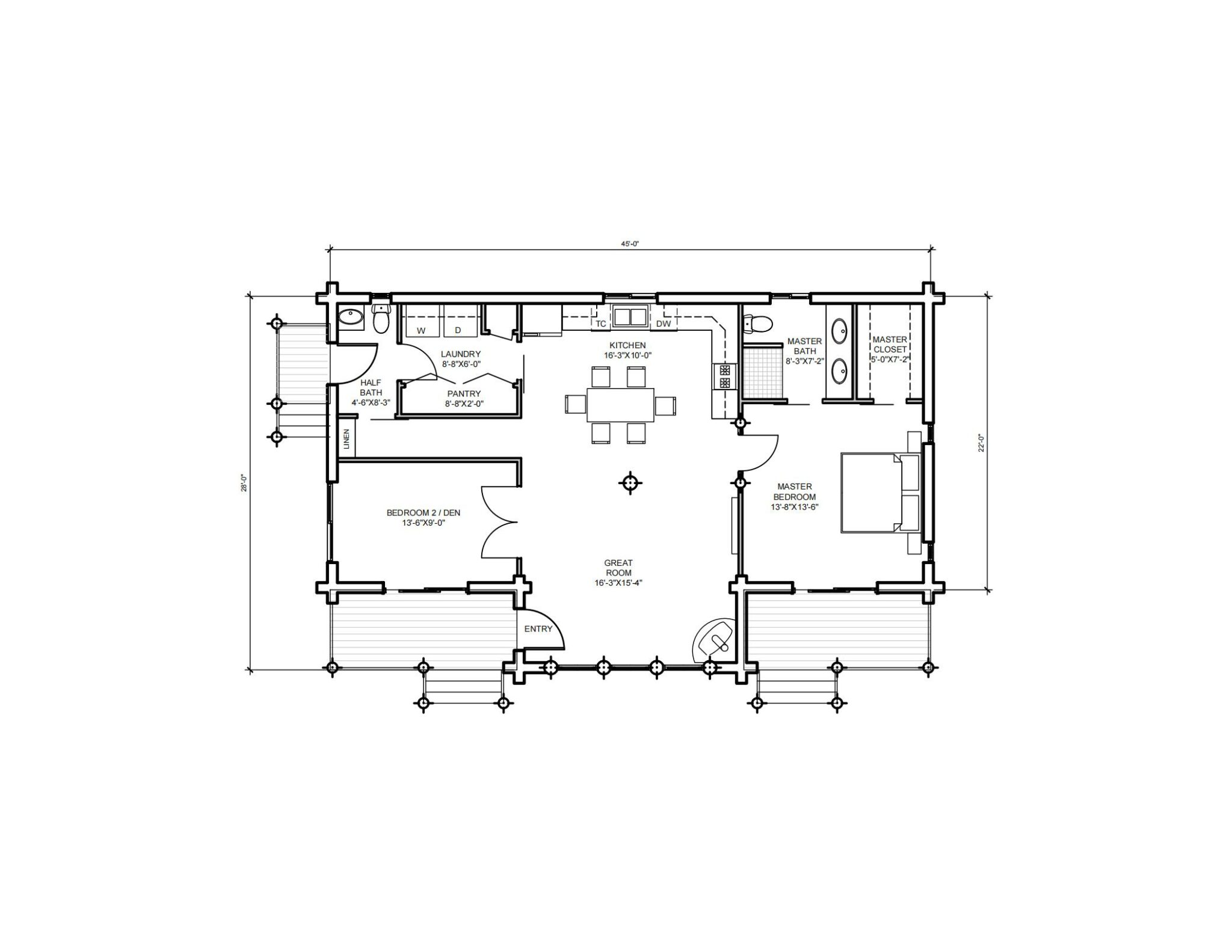
Bearbone Ranch
1 bedrooms
1.5 bathrooms
1092 sq ft
1 floors
Contact us
Share
Log Home Floor Plan
Bearbone Ranch
Prev
Previous
Horse Palace
Next
Almanor
Next